真空隔膜阀
主要功能特点
GM真空隔膜阀(衬里阀门)是上海泛亚电竞 泵阀有限公司设计开发供接通或切断真空系统之用。连接管焊接式真空隔膜阀更是溴化锂制冷设备中的理想配件。高真空隔膜阀的适用介质为空气及非腐蚀性气体。连接法兰标准按GB6070或GB4982规定,也可为连接管焊接型式。
产品简图

GM系列高真空隔膜阀

GM系列高真空隔膜阀外形尺寸图

GM系列高真空隔膜阀结构图
主要技术规范
| 适用范围Pa | 103~1.3×10-4 |
| 漏率Pa.L/S | 6.7×10-4 |
| 介质温度℃ | 隔膜为丁腈橡胶时-25~+80 |
| 隔膜为氟橡胶时-30 -150 |
主要零件材料
| 零件名称 | 材料 |
| 阀体 | 碳钢、不锈钢 |
| 隔膜 | 丁腈橡胶、氟胶 |
| 阀杆 | 不锈钢 |
主要外形、连接尺寸
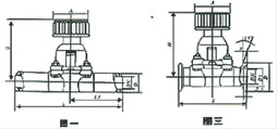
Ⅰ型连接管焊隔膜阀外形及连接尺寸(图一)
| 型号 \ 尺寸 | DN | D | H | A | L | L1 |
| GM-10C-H(Ⅰ) | 10 | 19 | 80 | 55 | 240 | 120 |
| GM-25C-H(Ⅰ) | 25 | 32 | 105 | 80 | 240 | 120 |
| GM-40C-H | 40 | 45 | 133 | 100 | 240 | 120 |
| GM-50C-H | 50 | 57 | 157 | 100 | 240 | 120 |
| GM-10D-H(Ⅰ) | 10 | 19 | 77.5 | 50 | 150 | 150 |
| GM-25C-H(Ⅰ) | 25 | 32 | 105 | 60 | 75 | 75 |
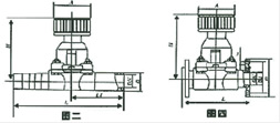
Ⅱ型连接管焊隔膜阀外形及连接尺寸(图二)
| 型号 \ 尺寸 | DN | D | H | A | L | L1 |
| GM-10C-H(Ⅱ) | 10 | 19 | 80 | 55 | 195 | 120 |
| GM-25C-H(Ⅱ) | 25 | 32 | 105 | 80 | 236 | 120 |
| GM-10D-H(Ⅱ) | 10 | 19 | 77.5 | 50 | 150 | 75 |
| GM-25D-H(Ⅱ) | 25 | 32 | 105 | 66 | 175 | 75 |
Ⅲ活套法兰连接隔膜阀外形及连接尺寸(图三)
| 型号 \ 尺寸 | DN | D | D1 | H | A | L |
| GM-10C-KF | 10 | 30 | 12.2 | 80 | 55 | 75 |
| GM-25C-KF | 25 | 40 | 26.2 | 105 | 80 | 120 |
| GM-40-KF | 40 | 50 | 41.2 | 133 | 100 | 120 |
Ⅳ活套法兰连接隔膜阀外形及连接尺寸(图四)
| 型号 \ 尺寸 | DN | D | D1 | H | A | L | n-Фc |
| GM-10C | 10 | 46 | 36 | 80 | 55 | 75 | 4-Ф6 |
| GM-25C | 25 | 70 | 55 | 105 | 80 | 120 | 4-Ф7 |
| GM-40C | 40 | 100 | 80 | 133 | 100 | 150 | 4-Ф9 |
| GM-50C | 50 | 110 | 90 | 157 | 100 | 180 | 4-Ф9 |
注:
1.本网页的真空隔膜阀结构、结构图、尺寸、参数等主要性能参数,以及安装尺寸图、安装尺寸表均只适用于参考,详细CAD图、安装图、以及产品说明书请向泛亚电竞
阀门营销人员索取。
2.由于编辑水平有限,错误和不妥之处在所难免,真诚希望您批评指正。
真空隔膜阀相关产品
下一页:内螺纹隔膜阀
返回至本系列目录:衬里阀门
上一页:电动隔膜阀